
您當前的位置:首頁 / 安全閥 / 美標安全閥 / LFGS美標系列高性能蒸汽安全閥
產品展示
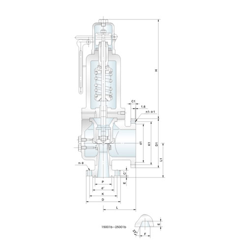
安全閥,美標安全閥LFGS系列高性能蒸汽安全閥適用于動力鍋爐、直流鍋爐、再熱器和其他設備及管道的超壓保護。符合ASME (鍋爐和壓力容器規范》第I卷動力鍋爐要求整定壓力偏差:△PS1%PS(PS>6.89MPa)超壓:△Po3%PS啟閉壓差:△Pb14%PS1、采取背壓調節系統結構設計,利用安全閥進口蒸汽提...
產品詳情
用途
LFGS系列高性能蒸汽安全閥適用于動力鍋爐、直流鍋爐、再熱器和其他設備及管道的超壓保護。
性能
符合ASME (鍋爐和壓力容器規范》第I卷動力鍋爐要求
整定壓力偏差:△PS≤±1%PS(PS>6.89MPa)
超壓:△Po≤3%PS
啟閉壓差:△Pb1≤4%PS
特點
1、采取背壓調節系統結構設計,利用安全閥進口蒸汽提供回座背壓并可調節,保證了啟閉壓差△Pb1≤4%PS。
2、閥座與閥體整體焊接,確保高溫、高壓工作下的連接可靠。
3、進、出口連接均為法蘭結構,便于安全閥的裝卸和維修。
4、導向對中性好,保證了安全閥動作靈活、可靠。
5、選用材質均能很好滿足高溫條件下的正常使用。
6、閥瓣、閥座密封面堆焊硬質合金并進行高精度研磨。
7、高性能彈簧,并對其進行模擬工況條件測試,保證了高溫、高壓工況下的正常使用。





本文鏈接:http://www.dwmt.cn/product/1642.htm
上一條:LFNJ美標系列保溫夾套式安全閥
下一條:LFXY美標系列液體泄壓安全閥
相關信息
相關新聞